Etagenwohnung - Kauf - Mannheim

Vermietete Kapitalanlage

90.000 €
Mannheim
Objektart
Wohnung
Objekttyp
Etagenwohnung
Vermarktungsart
Kauf
PLZ
68169
Ort
Mannheim
Zimmer
1
Schlafzimmer
1
Badezimmer
1
Wohnfläche
31,00 m²
Etagenzahl
3
Warmwasser enthalten
Ja
Provision für Käufer/Mieter
3,57%

Beschreibung:

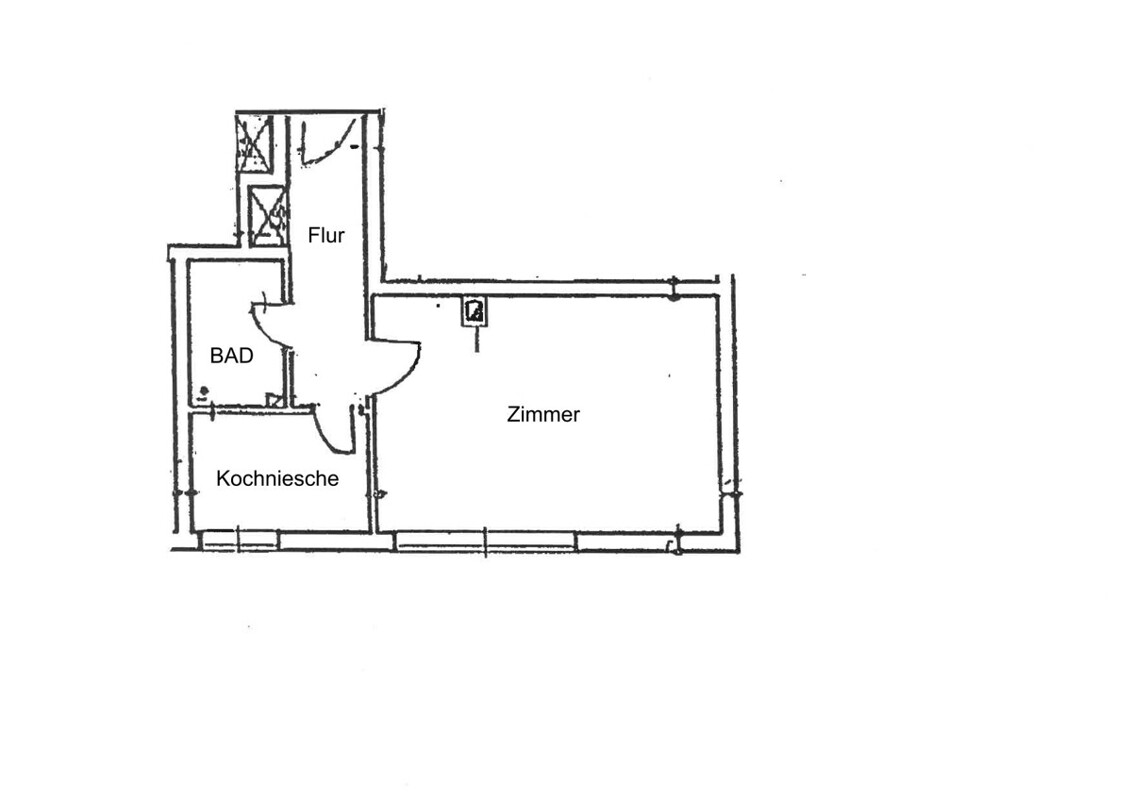
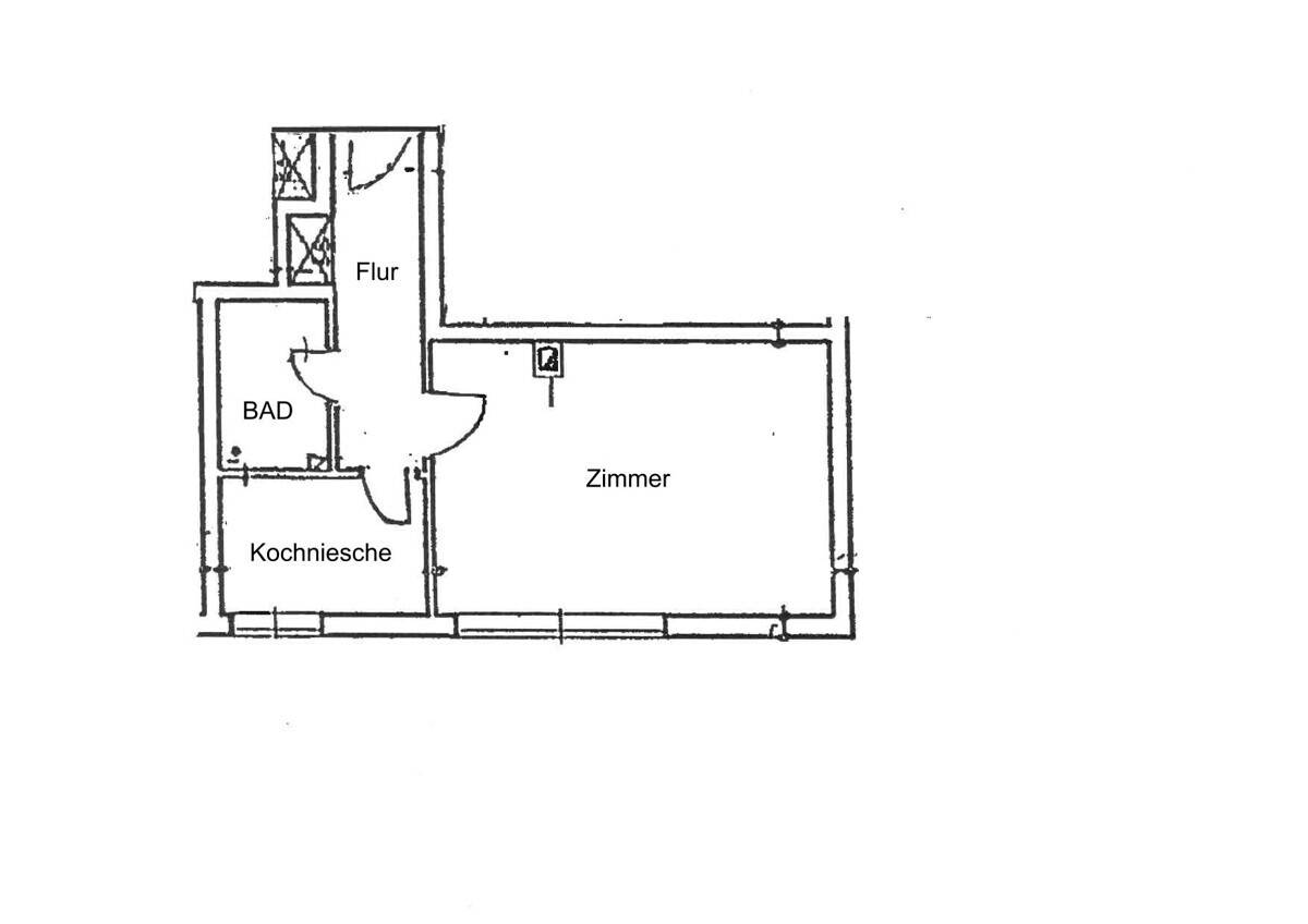
Diese charmante Etagenwohnung bietet auf 31 m² eine kompakte und gut durchdachte Raumaufteilung. Der Eingangsbereich führt direkt in den Flur, von dem aus alle Räume zugänglich sind. Das großzügige Zimmer bietet ausreichend Platz für Wohn- und Schlafbereich. Die angrenzende Kochnische ist funktional gestaltet und ermöglicht effizientes Kochen auf kleinem Raum.

Das Badezimmer ist praktisch angelegt und bietet alle notwendigen Annehmlichkeiten. Ein zusätzlicher Pluspunkt ist der vorhandene Keller, der zusätzlichen Stauraum bietet.

Diese Wohnung eignet sich ideal für Investoren, die eine stabile Vermietbarkeit und ein gutes Wertsteigerungspotenzial suchen.

Aktuell ist die Wohnung vermietet und die Kaltmiete beträgt 240€ im Monat.

Lagebeschreibung:

Die Immobilie befindet sich in Mannheim-Neckarstadt-West, einem lebendigen Stadtteil mit einer hervorragenden Infrastruktur. Die Anbindung an den öffentlichen Nahverkehr ist optimal, mit einer Straßenbahnhaltestelle in nur etwa 140 Metern Entfernung.

Für den täglichen Bedarf stehen mehrere Supermärkte in der Nähe zur Verfügung, darunter ein PENNY-Markt in ca. 350 Metern Entfernung. Auch die medizinische Versorgung ist durch nahegelegene Arztpraxen und Kliniken gesichert. Die Gemeinschaftspraxis Weingärtner und Neumann ist nur etwa 80 Meter entfernt.

Die Umgebung bietet eine Vielzahl an Freizeitmöglichkeiten. Parks und Grünflächen sind in der Nähe, ideal für Erholung und sportliche Aktivitäten.

Für Investoren bietet die Lage ein attraktives Potenzial.

Ausstattung:

Warmwasser enthalten

Energieausweis:

  • A+
  • A
  • B
  • C
  • D
  • E
  • F
  • G
  • H
0
30
50
75
100
130
160
200
250
>250
Baujahr:
1961
Endenergieverbrauch:
84,8 kWh/(m²a)
Energieausweis:
Verbrauchsausweis
Energieeffizienzklasse:
C
Energieausweis gültig bis:
26.07.2028
Baujahr lt. Energieausweis:
1961
wesentlicher Energieträger:
Gas

Ausstattungsbeschreibung:

- 1 Zimmer/Küche/Bad
- Keller
- 31 m² Wohnfläche
- Vermietet 240€ mntl. Kaltmiete

Sonstige Angaben:

Angaben nach EnEV 2014: Verbrauchsausweis/ BJ Haus 1961 / BJ Anlage 1998 / Energieträger Gas Zentral/ Effizienzklasse C/ Wert 84,7 kWh/(m²a), gültig bis 26.07.2028
Anela Adzemovic
Anela Adzemovic
Anela Adzemovic -RE/MAX Classic
0621 5490770
Jeder Lizenznehmer ist ein rechtlich eigenständiges Unternehmen und handelt auf eigene Rechnung und Verantwortung.